F_Tool(外部変形)

 ダウンロードした【F_Tool.lzh】を解凍します。【foundation.bat】、【foundation.exe】、 【foundationHelp.chm】他のファイルが出来ます。これらのファイルを、任意のフォルダ(名前の中に空白を含まない)に移動します。jwwを起動し、「外部変形」で【foundation】を指定します。

 

 基点を指示します。

基点は伏図を描く場合は通芯の交点、断面図を描く場合は通芯と基準レベルラインの交点、スラブ記号を描く場合はその記号の中心点、梁記号を描く場合は同じくその記号の中心を指定します。

■共通事項

  • 線色選択のコンボボックスは、レジストリに記録されている色を読込んで背景がその色になるようにしてあります。しかし、環境設定ファイル「jw_win.jwf」があると、その内容が優先されますので色が異なる場合があります。一例として背景色がレジストリでは黒になっていても、環境設定ファイル「jw_win.jwf」の内容で白になっていれば背景色が白になります。

  • 寸法線はレジストリより寸法線色、点種、寸法文字種など取得しています。また寸法線は寸法図形とし、引出線、寸法点は寸法属性を付加してあります。

  • 砕石ハッチについては、ハッチ属性を付加してあります。

  • 砕石ハッチ長さが短い場合などハッチが意図しない形状になる場合がありますが、これはアプリ終了後に修正願います。

■線色、線色、レイヤ指定等

何を作図するかを下図のボタンで指定します。

物件データ保存フォルダを指定 】を必ず指定します。今後この操作画面で入力する値はこのフォルダに保存されます。物件名等の名前にするといいと思います。未記入のままでは、実行できません。

■基礎記号作図

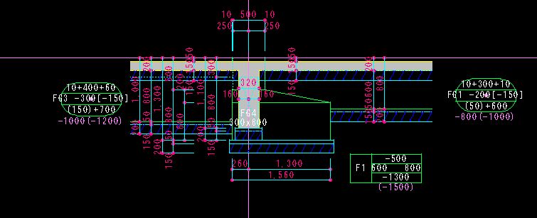
  • 上図にあるような基礎記号を作図します。描く人によってこの符号は異なると思いますが、左の「F1」は基礎符号、「-500」は基準レベルから基礎フーチングまでの下り、「600」はフーチングに垂直ハンチがある場合、先端のフーチング厚を、「800」は、元端の厚さを、「-1300」は、基礎底レベルを、「(-1500)」は、床付けレベルを示します。

  • この床付けレベルは、指定文字種の大きさで補助色で描き、この補助色は固定で変更できません。

  • このデータは、断面図に入力する値を引用しています。この関連する部分の値を入力すれば自動で記入されます。

■地中梁記号作図

  • 別アプリの「beam_sign.exe」を使って上図の地中梁の記号を作図します。「10+400+60」は、梁側の増打ち、構造梁巾、梁側の増打ちを、「FG3」は、地中梁記号を、「700」は、構造梁成を示します。「-1000(-1200)」は、梁底レベル、床付けレベルを示します。

  • 床付けレベルの文字色は、基礎記号と同様に指定文字種の補助色で描き変更できません。

  • 今回のアプリを開発するに合わせて、このアプリから「beam_sign.exe」へデータを渡しています。データの受け渡しは、梁サイズ、名称、レベル、線種、線色、角度等で、後は「beam_sign.exe」の操作画面で指定し実行します。

 この機能は、ライセンス認証している場合に利用できます。認証出来ていない場合は、単独で「beam_sign.exe」を利用するなどしてください。

  • 地中梁用に使用しますので、階高の欄はグレーアウトして入力できません。

  • 梁底のレベル表記も下階の基準からのレベルを表示している部分を床付けレベルとして表記しています。

■伏せ図作図

入力画面で指定した内容を元に、伏せ図を描きます。

上図の操作画面に値を入れ【 伏せ図作図 】を実行します。

  • 縦、横の通芯、断面位置に対応した値を保存しますので、通芯の入力は必須です。つまりこの通り芯、断面位置をインデックスにしています。

  • 平面データ、断面データ、基礎記号、梁記号のデータは、連携するようにしてありますがうまく連携していない場合は、断面位置を指定し直す、梁符号を抹消して入力し直すなどしてみてください。

作図条件は下記のとおりです。
  • 柱符号は必須です。柱符号がないケースは作図できません。

  • 梁がないケースは、梁符号の欄の文字を抹消します。 すると関連する値も抹消します。

  • 梁の片側が柱面と同面の場合は、注意メッセージが出て処理が中断します。これは、鉄筋の納まりで隅部柱主筋の内側に梁筋を通すため、梁の構造巾が確保できないため、梁位置としては柱面から柱主筋一本分内側に寄せて梁側の増打ちをこの分だけ大きくし梁側面、柱面を通すことになります(上図の左側の梁参照)。 この考え方によらない或いは気がつかない物件もありますが、本ソフトではこの考え方をしています。

  • 柱巾と梁巾が同一の場合は上記の処理は行いません。

  • 土に接する(埋戻し)にチェックがあると、処理の事前チェックで梁側、柱側に最低の増打ち10mm以上が指定してあるかをチェックします。

  • 基礎に垂直ハンチがある場合は、伏図でフーチング角から柱型角に向かって勾配線を描画します。

  • 基礎フーチング面より梁の増打ち面を出すことはできないようにしてあります。

 (通芯は事前に描いてあります。梁記号、基礎記号は別操作で作図してあります。)

■断面図作図
入力画面で指定した内容を元に、断面図を描きます。この機能は、ライセンス認証している場合に利用できます。

上図の操作画面に値を入れ【 断面図作図 】を実行します。

断面を指定するコンボボックスで、断面図を描きたい面を指定します。平面データ、断面データ、基礎記号、梁記号のデータは、連携するようにしてありますが連携していない場合は、断面位置を指定し直す、梁符号を抹消して入力し直すなどしてみてください。

作図条件は下記のとおりです。

  • スラブ段差については、下記の通り。

  • 左右のスラブ段差が<70の場合、段差*5倍を段差梁巾とする。

  •      〃      70≦ ≦150の場合、350を段差梁巾とする。

  •      〃      >150の場合、上がっているスラブの厚さが200以下の場合に、そのスラブ厚*1.5倍を段差梁巾とする。

  • 上記の条件を外れたら、作図を中止する。

  • 砕石ハッチの指定がされてあっても、ハッチする長さが砕石厚に近い場合は作図しません。後でハッチを付け足してください。

(通芯、基準レベル線は事前に描いてあります。梁記号、基礎記号は、別操作で作図してあります。)

■その他

  • 操作終了の状態をテキストデータに保存してあります。このファイルは、アプリと同一のフォルダに必要です。なければ注意メッセージが出て、新規に作成されます。  

  • 起動に失敗するときは、このデータを削除し再実行してください。

  • jwwのフォルダが、または上位フォルダの名前の一部に空白が使われている場合は、うまく作動しない場合があります。jwwインストールフォルダを変えるなどしてください。

  • 入力画面途中でキャンセルした場合は、その入力情報を保存しませんので注意願います。正常に終了した場合についてのみ入力情報を保存します。

  • 最低限のエラー処理しかしてありませんので、使用方法によりエラーが出る場合があります。